《当代建筑》
2023年11月刊
本期主题
该期杂志邀请全国工程勘察设计大师,中衡设计集团股份有限公司董事长、首席总建筑师冯正功担任客座教授,以“延续建筑”为主题,在主题专栏集结了来自不同地域的专家学者及其设计作品与研究思路。作品虽承载了不同记忆,殊途却同归,皆梳理了历史脉络并立足于当下的生活与需求,探索出古今辉映的精神气质与实施路径。
本期学术沙龙在南京大学苏州校区举办,冯正功、黄琳、吕彬著论文《文脉视野下的城市特色风貌设计》发表在“主题专栏”,中衡设计集团作品“东校区规划与教学行政综合体设计”刊登在“设计作品”一栏。
即日起,我们将分期发布《当代建筑》11月新刊导读、学术沙龙、《文脉视野下的城市特色风貌设计》论文以及《继往向前 文质相衡——南京大学苏州校区东校区规划与教学行政综合体设计》工程案例等内容。
本期内容 南京大学苏州校区项目介绍

本期封面:南京大学苏州校区 摄影:是然建筑
南京大学苏州校区东区规划与教学行政综合体设计
全文刊登于《当代建筑》2023年第11期 p76-89

南京大学苏州校区东区与庄里山
南京大学苏州校区位于苏州市高新区科技城,南邻城市主干道——太湖大道,北望八百余米外的太湖,西为城市干道——长巷路,东侧为自然水系。用地被庄里山分为东、西两区,校区建设统一规划,分步实施,东区作为首期先行建设。南京大学苏州校区东区遵循总体规划,既相对独立,又与西区相呼应,共同组成完整的南京大学苏州校区。

东区主出入口

望山宿舍
1 总体规划
1)狭长地形下的整体建筑架构。校区总体规划结合地形的收放和延展,采用南京大学鼓楼校区中多重短轴的方式,一脉相承地延续、串联校区空间,统筹各个组团的秩序,形成校园的整体性和延续性。东区地形沿山展开,南北向长1 200 m,东西向长200~300 m,为不规则的带状狭长地形,给总体规划带来了一定难度。设计团队依据建筑功能,对建筑进行分组,并依据地形,统筹不同的建筑朝向,营造出整体统一的组织架构和疏密有致的空间形态。

沿山界面
2)山水之间的建筑创作。校区地理环境禀赋优渥——西接庄里山,东临九曲河,北望太湖,山水交融。校园与周边环境融为一体,拥山抱水。规划将环山消防通路与校园道路进行一体化设计,规避校区被山、水分割的情况。校园形态顺应近山临水低、远山隔水高的地势,沿山依水形成一系列空间节点。建筑布局通过对、让、退、借等手法,与自然互动,与山水交融:从学校交流中心的中庭望山远眺,教学综合体的曲线与山形共语,操场看台遁山而下,书院宿舍半区面山、半区望水。

从操场回望教学中心
3)因形就势的教学行政综合体。教学行政综合体位于东区的地理核心位置,北侧为生活组团区,南侧为运动科研区。设计将联系南北功能的路径作为创作的线索之一——路径或嵌于主体建筑之外,形成柱廊、户外台阶、坡道,或内化于建筑之中,成为内庭、廊桥等,组团院落布局积极营造自身的场所精神,创造东区静谧的教学环境。

沿河岸观教学中心

山脊入口
2 七座院落与中央山脊
教学行政综合体的设计始于建筑与自然的互动关系,在总体规划的基础上,经过平面正负空间的推演,灵活设置了七座院落,内外空间达到均衡。建筑空间与院落均采用18 m×18 m的模数,有序进行间隔布置,形成类似苏州传统民居的一进院落空间序列。东、西两侧建筑的对位关系错让一个模数,使建筑与院落在水平方向一一对位。建筑由一组覆土坡屋顶的公共空间——“中央山脊”串联,并随着“山脊”的起伏变化调度空间节奏。内部融合了服务、交流、学习等功能,统筹了四组教学空间流线;外部则形成了一至三层的屋顶类山花园,半山绿坡,半山光庭,将阳光、绿植、微风引入室内,塑造全新的教学空间。

教学中心院落

行政中心沿山界面
3 四界相合
基地四个边界特点鲜明,这为设计的展开埋下伏笔。设计团队合力处理用地与四界的关系,营造了建筑自身的在地属性。教学行政综合体面对东侧主出入口,架空底层,将山景纳入主入口的视界,通过水景、草坪、柱廊等语汇,塑造入口广场的文化感与历史感。西侧邻山,设计在体量上对山体进行退让。首层接近山,采用曲线的轮廓,与山体共同营造收放自如的山脚空间;二层的屋顶花园与三至五层的观山阳台,逐级后退,打造了立体的观山效果,立面结合东向遮阳板使建筑具有了呼吸般的生动感。东侧泮水,设计针对内部空间进行布局,合理搭配材质,让建筑在东侧形成有节奏的虚实变化,并通过庭院、长廊将水景引入室内。南侧靠近校园运动区,设计采用地景化的方式处理南侧建筑形态:将可容纳500人的报告厅沉入地下,中央山脊绵延至地面并以台阶收尾,形成运动区的第二看台,辅以蓬廊、零售服务亭等小品,相映成趣。最终四界相合,呈现合与理、合与势、合与意的形态。

柱廊
4 游园与泛在学习
当代学科发展更加强调交流与跨界,学习的场所不再限定于教室内部,公共空间与室外场所的营造同等重要。设计除了设置了近二十种教室类型外,还塑造了整体而多样的泛在学习空间。

山脊看台

院落与山脊
设计从人的体验出发,调度空间节奏,注重收与放、开与合、虚与实的空间关系。中央公共空间通过屋顶形式与内部隔断界定了第一道序列;穿过格栅,山脊屋顶开始爬升,空间高度不断被抬高,爬升一定高度后,于二层悬挂了一个空中楼阁——视听教室,从而界定了第二组空间序列;继而往前,中央山脊的内部全貌有序展开——向上的屋顶与自然采光、自然通风相结合,时间被清晰地印刻在游走的光影中;上下路径是设计重点考虑的方面,单侧悬挑的弧形楼梯联系一至三层,其在一层放大,形成工人们休息、讨论的场所;下沉庭院有效激活了地下空间;中庭两侧的院落是交替出现的,虚与实流转,视觉通过连续的序列呈现,此刻,时间被拉长,上一刻的印象、当下的体验、对未来的预判与自然重叠成没有界限的空间图景。使用者获得了游园般的空间体验,于此遇智者,展开交流,进行沉思,碰撞思想。

俯瞰中庭空间上山路径

中庭空间上山路径起点
5 记忆与传承
材料是建筑最直接的表情,也是记录历史和记忆的载体。南京大学鼓楼校区使用的材料特征鲜明,建筑以灰砖为体,红窗为瞳,“灰红”的校园风貌随着时光的流逝,成为“南大人”的“集体记忆”。在宏观风貌上,南京大学苏州校区传承了老校区整体灰红的色调;在微观层面,材料的细节与质感,以及蕴含的情感与记忆也得到了延续。南京大学北大楼的青砖为南京明城墙城砖,尺度异于一般青砖,蕴含了独特的人文、历史气息。教学行政综合体尺度近人,选用苏州御窑大青砖进行砌筑。在青砖与城砖的延续中,历史、文化、记忆都得到了恰当的回应,由数十种不同排版方式形成的青砖表情,既是苏州的,又是“南大”的。

中庭公共空间全貌

中庭空间入口序列

向上爬升的屋顶
6 结语
南京大学苏州校区东区教学行政综合体的整体设计融合新老校区,延续记忆与文脉;融合园林与空间,营造场所与人文;融合建筑与环境,调度空间与时间,游走于其中,让情感在历史、文化、时间之间流转。多维的历史沉淀塑造了浓厚的文化氛围,设计在转译创作的同时,注重建筑品质的提升,最终塑造了激发人们情感、提供社交互动和具有创造力的新型校园学习和生活环境,进而推动了面向未来的高等教育的融合与创新。

拾级而上的山径

阳光、绿化环抱的休息区
项目图纸

入口区域与教学中心总平面图

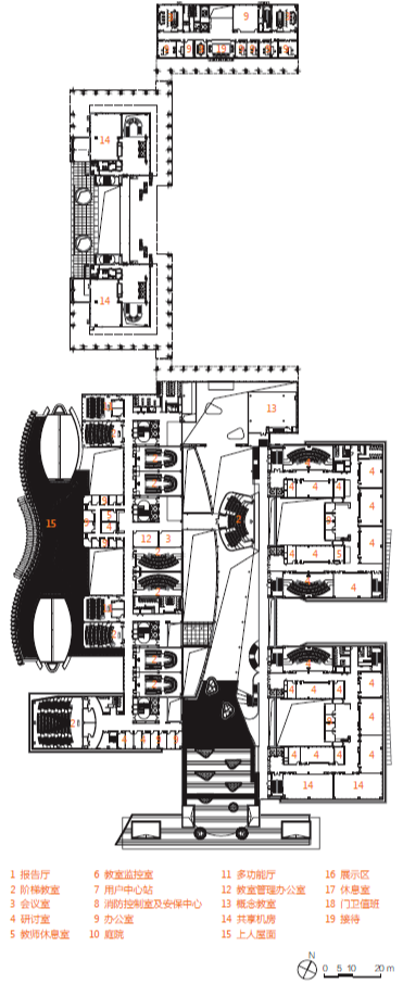
一层平面图

二层平面图

东西向剖面图

南北向剖面图
项目概况
项目名称 | 南京大学苏州校区东区规划与教学行政综合体设计
业 主 | 苏高新教育产业发展(苏州)有限公司
项目地点 | 江苏省苏州市
设计单位 | 中衡设计集团股份有限公司
用地面积 | 44 064.03 m2
建筑面积 | 81 764.44 m2
建筑层数 | 5层
设计总负责 | 冯正功
设计团队 | 黄琳,王恒,陈全慧,邢赫,沈仕娜,吴小兵,赵泽滨,丛佳,戴晗雪,孙盼盼,孙颖,李军,陈隐石,张芹,邵猛猛,张谨,谈丽华,郭一峰,张斌,高喆,邱悦,尤凌兵,徐光,姜肇锋,姚启矿,武云雷,宋洋,冯嘉音,张广阳,郭怡文,胡砚,陈雨菲,周耀星,陈天花,沈筠,吴明华
设计时间 | 2020年4月—2021年4月
建成时间 | 2023年7月
图纸版权 | 中衡设计集团股份有限公司
摄 影 | 是然建筑,秦伟